Продается офисное помещение 4419 м² 1 922 091 000 руб.
Бесплатные и платные деловые объявления для выгодного сотрудничества!
Фильтр
Искать во всех странах
Место нахождения
Искать во всех странах
  • Россия
  • Беларусь
  • Казахстан
Москва и Московская обл.
Искать по выбранному региону
Искать по выбранному региону
  • Авсюнино
  • Агрогород
  • Андреевка
  • Апрелевка
  • Архангельское
  • Атепцево
  • Ашитково
  • Балашиха
  • Барвиха
  • Барыбино
  • Белозёрский
  • Белоомут
  • Белые Столбы
  • Биокомбината
  • Богородское
  • Большевик
  • Бронницы
  • Быково
  • Ватутинки
  • Вербилки
  • Верея
  • Видное
  • Внуково
  • Володарского
  • Волоколамск
  • Воскресенск
  • Востряково
  • Высоковск
  • Гальчино
  • Глебовский
  • Голицино
  • Давыдово
  • Деденево
  • Дедовск
  • Демихово
  • Дзержинский
  • Дмитров
  • Долгопрудный
  • Домодедово
  • Дорохово
  • Дрезна
  • Дружба
  • Дубна
  • Егорьевск
  • Железнодорожный
  • Житнево
  • Жуковский
  • Загорянский
  • Запрудня
  • Зарайск
  • Заречье
  • Звенигород
  • Зеленоград
  • Ивантеевка
  • Икша
  • Ильинский
  • Ильинское
  • Истра
  • Калининец
  • Кашира
  • Киевский
  • Климовск
  • Клин
  • Клязьма
  • Кокошкино
  • Коломна
  • Коммунарка
  • Константиново
  • Коренево
  • Королев
  • Котельники
  • Красково
  • Красноармейск
  • Красногорск
  • Краснозаводск
  • Краснознаменск
  • Кратово
  • Кубинка
  • Купавна
  • Куровское
  • Лесной Городок
  • Ликино-Дулево
  • Лобня
  • Лопатинский
  • Лосино-Петровский
  • Лотошино
  • Луговая
  • Лунёво
  • Луховицы
  • Лыткарино
  • Люберцы
  • Любучаны
  • Малаховка
  • Михнево
  • Можайск
  • Монино
  • Москва
  • Московский
  • Мытищи
  • Наро-Фоминск
  • Нахабино
  • Некрасовский
  • Никольско-Архангельское
  • Новоивановское
  • Новопетровское
  • Новоподрезково
  • Новосиньково
  • Ногинск
  • Оболенск
  • Обухово
  • Одинцово
  • Ожерелье
  • Озёры
  • Октябрьский
  • Опалиха
  • Орехово-Зуево
  • Островцы
  • Павловский Посад
  • Первомайский
  • Пересвет
  • Пески
  • Пироговский
  • Подольск
  • Правдинский
  • Привокзальный
  • Пролетарский
  • Протвино
  • Пушкино
  • Пущино
  • Развилка
  • Раменское
  • Реммаш
  • Реутов
  • Речицы
  • Решетниково
  • Ржавки
  • Рогачево
  • Родники
  • Рошаль
  • Руза
  • Салтыковка
  • Свердловский
  • Северный
  • Селятино
  • Сергиев Посад
  • Сергиевский
  • Серебряные Пруды
  • Серпухов
  • Скоропусковский
  • Солнечногорск
  • Софрино
  • Старая Купавна
  • Старый Городок
  • Столбовая
  • Ступино
  • Сходня
  • Сычево
  • Талдом
  • Текстильщик
  • Томилино
  • Троицк
  • Тучково
  • Уваровка
  • Удельная
  • Узуново
  • Фосфоритный
  • Фрязино
  • Фряново
  • Химки
  • Хорлово
  • Хотьково
  • Черкизово
  • Черноголовка
  • Черное
  • Черусти
  • Чехов
  • Шатура
  • Шаховская
  • Шереметьевский
  • Шишкин Лес
  • Шувое
  • Щербинка
  • Щёлково
  • Электрогорск
  • Электросталь
  • Электроугли
  • Юбилейный
  • Яхрома

Продается офисное помещение 4419 м² №191925

№191925
Создано: 10 марта
Продается офисное помещение 4419 м² Москва - изображение 1
Продается офисное помещение 4419 м² Москва - изображение 2
Продается офисное помещение 4419 м² Москва - изображение 3
Продается офисное помещение 4419 м² Москва - изображение 4
Продается офисное помещение 4419 м² Москва - изображение 5
Продается офисное помещение 4419 м² Москва - изображение 6
Продается офисное помещение 4419 м² Москва - изображение 7
Продается офисное помещение 4419 м² Москва - изображение 8
Продается офисное помещение 4419 м² Москва - изображение 9
Адрес: Москва, Дмитровский проезд, д 1Г, Москва, Москва и Московская обл., Россия, Показать На карте на карте
Ищу / Предлагаю: Предлагаю
Тип недвижимости: Офисные помещения
Площадь: более 1000 м²
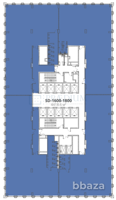
Уважаемый Покупатель, предлагаем Вам приобрести в БЦ "STONE Дмитровская" ("STONE Dmitrovskaya") офис 4418.6 м² на 18 этаже в собственность на выгодных условиях.

Приточно-вытяжная вентиляция. Центральное кондиционирование. Пожарная сигнализация. Интернет, телефония. Охрана. Видеонаблюдение. Система контроля доступа. Подземная парковка.

САО Москвы. В 5 минутах от м. Дмитровская

Быстро реагируем на обращения, организуем встречу на объекте в удобное для Вас время, направим план помещения и ответим на все возникшие вопросы!
Звоните сейчас и получите лучшие условия на рынке!
ID: L13028
№191925
Создано: 10 марта
Зарегистрируйтесь или авторизуйтесь чтобы оставить комментарий.
1 922 091 000 руб.
Сообщение Контакты
Отдел коммерческой недвижимости
Был в сети 3 октября 2025 15:13
Игропарк просмотр справа

Клац Анна Борисовна, ИНН 772076019753, erid: 2SDnjcxMWVo

Наверх